• 首页
  • 公司简介
    • 关于我们
    • 愿景和使命
    • 荣誉奖项
    • 我们的认证
    • 集团公司
  • 我们的项目
    • 项目展示
    • 展示所有项目
  • 专业服务
  • 新闻与媒体
    • 综合报导
    • 展示间
    • 视频
  • 职业
  • 联络
    • 联系我们
    • 追加咨询
  • 主页
  • 公司简介
    • 公司背景
    • 愿景和使命
    • 公司奖项
    • 我们的认证
    • 集团公司
  • 项目展示
    • I-PARK@SENAI AIRPORT CITY
    • I-PARK @ INDAHPURA
    • I-PARK @ SiLC
    • DISTRICT 6 @ SiLC
    • SME CITY
    • THE JACARANDA
    • 展示全部
  • 专业服务
  • 新闻媒体
    • 综合报导
    • 展示间
    • 视频
  • 加入我们
  • 联系我们
    • 追加咨询

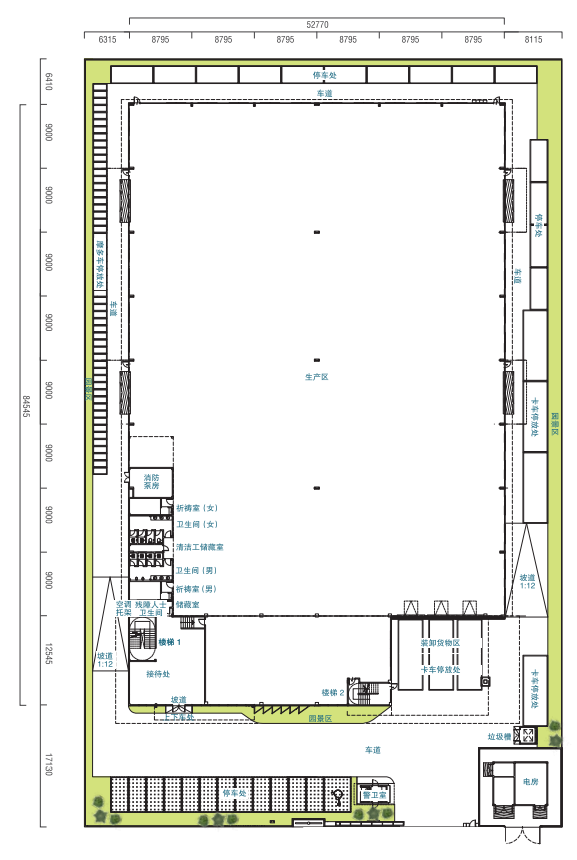
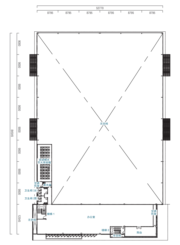
一层半,独立式厂房
(大约1.8英亩)

土地面积:

约78,185.39-82,228.35平方英尺

楼面面积:

约60,362.36平方英尺

平面图
侧面图
标准建筑规格(一切以英文版为标准)
平面图

底楼

1楼

侧面图

正面

背面

左侧

右侧

标准建筑规格(一切以英文版为标准)

Factory Height

: 9m

Floor Design Loads

Production area (Ground Floor)

Office Area (Mezzanine Floor)

: 20KN/m²(Non Suspended Floor Slab)

: 2.5KN/m²

Roof Design Loads

Production Area Roof

: Imposed dead load = 0.4kN/m² (Load of Rafter,
  Purlin, Metal Roofing Sheet, Insulation, Lighting
  Fitting, Sprinkler Pipe & Gypsum Board Ceiling with
  Aluminium Tee Frame & Solar Panel) Live load= 0.25kN/m²

Roof System

 

Roof Structure

 

Roof Sheets

 

Gutter

 

: Structural Steel Designed to BS 5950 Standard

: Metal Roof or equivalent c/w 50mm thick fiberglass
  insulation

: Stainless Steel Gutter

Walls

 

Internal Wall
(Office and Sprinkler Tank Area)

External Wall (Office Area)

External Wall (Production Area)

: 115mm thick common brick wall with plaster and
  painted with emulsion paint

: Ceramic wall tiles to toilets (2.1m High)

: 115mm thick common brick wall with plaster and
  painted with weather bond paint

:  Brickwall and / or Precast Wall and painted with
  weather bond paint

Floors

 

Ground floor

 

Production Finishes

 

Office & Lobby Finishes

 

Lobby Staircase Finishes

 

Toilet Floor Finishes

 

: G30 concrete with a layer of 
  polythene sheet and BRC mesh

: 4kg/m² floor harderner finishes

: Cement Render

 

: Cement Render

 

: Matt Surface Ceramic Tiles

 

Doors

 

External Doors

 

Internal Doors

 

: Motorized Roller Shutters and Mild Steel Doors
  (Production Area)

: Laminated glass door (Entrance Area)

: Laminated glass door (Entrance Area)

Windows

 

External Windows

: Reflective Glass Curtain Wall (Office Area)

 

: Aluminium Framed Top Hung Windows (Office Area)

Ceiling

 

Office Area

 

Production Area 

 

: Gypsum Pin Hole False Ceiling 
  (Office Area)

: Gypsum Board Plaster Ceiling(Lobby Area)

: Exposed  Steel Structure (No Ceiling)

Infrastructure & Amenities

 

External Road

 

Fencing

 

Gate

 

Drainage System

 

Sewerage System

 

Bin Center

 

Guardhouse

 

Sprinkler Tank & Plinth

TNB Sub-station

 

Dock Leveller

 

: Reinforced Concrete Road c/w road marking

: Front Signage : Common Brick Wall with c/w
  plaster cement and painted with weatherbond
  paint

: Perimeter : 150mm High Kerb with 1.8m High
  BSP Fencing

: Mild Steel Sliding Gate Without Motor

: Power Point for Motor Provided

: Concealed Pipe Culvert Drain

 

: Vitrified clay pipe (VCP) connect to main
  sewerage line

: 1 no.

: 1 no.

: 1 no.

: Subject to appropriate authority requirement

: Subject to design

 

: Aluminium Frame Casement Window (Production Area)

STANDARD MECHANICAL & ELECTRICAL SPECIFICATION

MSB 1000A (setting 600A)

DB 150A

DB 60A

DB 30A

Lighting Point

13A S/S/O

Air-Cond Power Point

Emergency Light

Keluar Sign

Telephone Point

Data Point

20A Isolator Point

30A Isolator Point

: 1 no.

: 2 nos.

: 2 nos.

: 1 no.

: Yes

: Yes

: Yes

: Subject to appropriate authority requirement

: Subject to appropriate authority requirement

: Yes

: Yes

: Yes

: Yes

 

FIRE PROTECTION SYSTEMS

Fire Alarm System

Hosereel System

Automatic Sprinkler System
(Ordinary Hazard)

Portable Fire Extinguisher

Hydrant System

 

: Yes

: Yes

: Yes

: Yes

: Yes

PLUMBING & WATER RECTICULATION SYSTEMS

 

Water Tank for Toilet only

Incoming Domestic Piping & Discharged Piping

: Yes

 

: Yes

 
注意:以上所有项目均应根据主管部门的要求或建筑师或工程师的建议进行更改,修改和替代。
平面图
侧面图
标准建筑规格(一切以英文版为标准)
平面图

底楼

1楼

侧面图

正面

背面

左侧

右侧

标准建筑规格(一切以英文版为标准)

工厂高度

9米

地板设计荷载

生产区域(底楼)
20KN /m²(非悬浮式楼板)

办公区(夹层楼)

2.5KN/m²

屋顶设计荷载

生产区域屋顶
施加的恒载= 0.4kN /m²(R架,Pur条,金属屋面,隔热,照明配件,洒水管和石膏板天花板,带有T型铝框的荷载与太阳能板)活载= 0.25kN /m²

屋顶系统

屋顶结构

根据BS 5950标准设计的结构钢

屋顶板

金属屋顶或等效的50毫米厚玻璃纤维绝缘材料

排水沟

不锈钢水槽

墙

内墙 (办公室和喷水器储罐区)

115毫米厚的普通石膏墙和涂有乳胶漆, 卫生间陶瓷墙砖(2.1m高)

外墙(办公区)

115毫米厚的普通石膏墙和涂有耐候性漆

外墙(生产区域)

砖墙和/或预制墙,涂有 全天候涂料

楼层

底楼

G30混凝土层 聚乙烯片材和BRC网格

生产饰面

4kg /m²地板硬化剂饰面

办公室和大堂饰面

水泥渲染

大堂楼梯饰面

水泥渲染

厕所地板饰面

亚光面瓷砖

门

外门

电动卷帘门和低碳钢门(生产区域),夹层玻璃门(入口区域)

内门

防火门(根据当地法规要求)和齐平门(办公区)

视窗

外窗

铝框平开窗(生产区域)

反光玻璃幕墙(办公区)

铝框上悬窗(办公区)

天花板

办公区

石膏针孔假天花板(办公区),石膏板石膏天花板(大堂区)

生产区

裸露的钢结构(无天花板)

基础设施

外路

钢筋混凝土路标

篱笆
前标牌 :
普通砖墙,配以白灰泥水泥并涂有耐候性涂料

周长:150毫米高路缘和1.8 m高BSP围栏

门

无电动机的轻钢滑动门,提供电动机的功率点

排水系统

暗管涵排水

下水道系统

陶瓷粘土管(VCP)连接到主排水管

垃圾桶

1个

警卫室

1个

洒水箱和底座

1个

TNB变电站

遵守适当的权限要求

码头矫平机

以设计为准

标准的机械和电气规范

MSB 1000A(设置600A)

1个

DB 150A

2个

DB 60A

2个

DB 30A

1个

照明点

有

13A S/S/O

有

空调电源点

有

紧急灯

遵守适当的权限要求

登出

遵守适当的权限要求

电话点

有

数据点

有

20A 隔离点

有

30A 隔离点

有

消防系统

火警系统

有

软管系统

有

自动洒水系统 (普通危险)

有

手提式灭火器

有

消防栓系统

有

水暖和水处理系统

仅限马桶水箱

有

来水管及排水管

有

注意:以上所有项目均应根据主管部门的要求或建筑师或工程师的建议进行更改,修改和替代。

Info@amedevelopment.com.my (+60)7-5959 999

我们的企业

公司背景

愿景使命

公司奖项

我们的证书

我们的专业

项目

i-Park@Senai Airport City
i-Park @ Indahpura
i-Park @ SiLC
District 6 @ SiLC
SME City
The Jacaranda

AME HQ 地址

No.5, Jalan I-Park SAC 2,
Taman Perindustrian I-Park SAC,
81400 Senai, Johor, Malaysia

电子邮件

Enquiry@ipark.com.my

电话/服务热线

+607-5959 999

传真

+607-5959 668

集团公司

AME Elite Consortium Berhad
AME Construction
AME Engineering
Asiamost
Ipark Development
i-Stay

加入我们

职业

社交媒体

Facebook
LinkedIn

Twitter

Instagram

Youtube

法律

隐私政策

条款和条件

AME DEVELOPMENT SDN BHD 200801002418 (803702-H)
Copyright © 2025 AME Development Sdn. Bhd. All Rights Reserved.
Group of Companies under AME Elite Consortium Berhad.

Chat with us
Start a Conversation
Hi! Click one of our member below to chat on Whatsapp
The team typically replies in a few minutes.
Sales & Marketing
加载中
加载中