• 首页
  • 公司简介
    • 关于我们
    • 愿景和使命
    • 荣誉奖项
    • 我们的认证
    • 集团公司
  • 我们的项目
    • 项目展示
    • 展示所有项目
  • 专业服务
  • 新闻与媒体
    • 综合报导
    • 展示间
    • 视频
  • 职业
  • 联络
    • 联系我们
    • 追加咨询
  • 主页
  • 公司简介
    • 公司背景
    • 愿景和使命
    • 公司奖项
    • 我们的认证
    • 集团公司
  • 项目展示
    • I-PARK@SENAI AIRPORT CITY
    • I-PARK @ INDAHPURA
    • I-PARK @ SiLC
    • DISTRICT 6 @ SiLC
    • SME CITY
    • THE JACARANDA
    • 展示全部
  • 专业服务
  • 新闻媒体
    • 综合报导
    • 展示间
    • 视频
  • 加入我们
  • 联系我们
    • 追加咨询

C型 1层半,独立式厂房
(约2英亩/以上)

土地面积:

约79,097.10平方英尺– 96,964.56平方英尺

建筑面积:

约58,074平方平方英尺– 72,615平方英尺

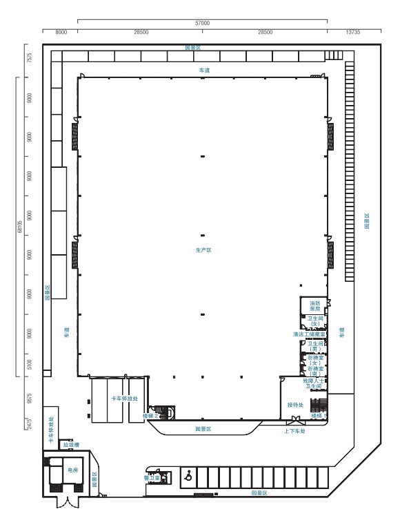
平面图
侧面图
标准建筑规格(一切以英文版为标准)
平面图

底楼

1楼

侧面图

正面

背面

左侧

右侧

标准建筑规格(一切以英文版为标准)

 

Factory Height

: 9m

Floor Design Loads

Production area (Ground Floor)

Office Area (Mezzanine Floor)

: 20KN/m²(Non Suspended Floor Slab)

: 2.5KN/m²

Roof Design Loads

Production Area Roof

: Imposed dead load = 0.25kN/m² (Load of Rafter,
  Purlin, Metal Roofing Sheet, Insulation, Lighting
  Fitting, Sprinkler Pipe and Gypsum Board Ceiling with
  Aluminium Tee Frame) Live load = 0.25kN/m²

Roof System

Roof Structure

Roof Sheets

Rain Water Down Pipe

Gutter

: Structural Steel Designed to BS 5950 Standard

: Galvalume Metal Roof or equivalent c/w 50mm
  thick fiberglass insulation

: Exposed 150mm ∅ UPVC Pipe (Production Area)

  Concealed 150mm ∅ UPVC Pipe (Office Area)

: Stainless Steel Gutter

 

Walls

Internal Wall
(Office & Sprinkler Tank Area)

 

External Wall (Office Area)

 

External Wall (Production Area)

: 115mm thick common brick wall with plaster and
  painted with emulsion paint

: Ceramic wall tiles to toilets (2.1m High)

: 115mm thick common brick wall with plaster and
  painted with weather bond paint

: Brickwall and / or Precast Wall and painted with
  weather bond paint

Floors

Ground floor

 

Production Finishes

Office & Lobby Finishes

Lobby Staircase Finishes

Toilet Floor Finishes

: 150mm thick G30 concrete with a layer of
  polythene sheet and BRC A7

: 4kg/m² floor harderner finishes

: Polished tiles

: Polished tiles

: Matt Surface Ceramic Tiles

Doors

External Doors

 

Internal Doors

 

: Motorized Roller Shutters and Mild Steel Doors
  (Production Area)

 

: Tempered glass door (Entrance Area)

: Fire-rated Door (Based on local authority
  requirement) & Timber Flush Door (Office Area)

Windows

External Windows

: NA Aluminium Casement Window (Production Area)

: Reflective Glass Curtain Wall (Office Area)

: Aluminium Framed Top Hung Windows (Office Area)

Ceiling

Office Area

Production Area 

: 2ft x 4ft Gypsum Pin Hole False Ceiling
  (Office Area)

: Gypsum Board Plaster Ceiling(Lobby Area)

: Exposed  Steel Structure (No Ceiling)

Infrastructure Works

External Road

 

Parking Bays

 

Fencing

 

 

Gate

Drainage System

Sewerage System

 

Bin Center

Guardhouse

Sprinkler Tank & Plinth

TNB Sub-station

Dock Leveller

: 150mm Thick Reinforced Concrete Road
  c/w Road Marking

: 150mm Thick Reinforced Concrete Road c/w
  Parking Lot

: Front Signage : 10m length Common Brick Wall
  with c/w plaster cement and painted with
  weatherbond paint

: Perimeter : 150mm High Kerb with 1.8m High
  BSP Fencing

: 9m Wide Sliding Gate without Motor

: Power Point for Motor Provided

: Concealed Pipe Culvert Drain

: Vitrified clay pipe (VCP) connect to main
  sewerage line

: 1 no.

: 1 no.

: 1 no.

: Subject to appropriate authority requirement

: Subject to design

Standard Mechanical & Electrical Specification

MSB 1000A (setting 600A)

DB 150A

DB 60A

DB 30A

Lighting Point

13A S/S/O

Air-Cond Power Point

Emergency Light

Keluar Sign

Telephone Point

Data Point

30A Isolator Point

: 1 no.

: 2 nos.

: 2 nos.

: 1 no.

: 138 nos.

: 41 nos.

: 3 nos.

: 34 nos.

: 3 nos.

: 3 nos.

: 2 nos.

: 9 nos.

Fire Protection Systems

Fire Alarm System

Hosereel System

Automatic Sprinkler System (Ordinary Hazard)

Portable Fire Extinguisher

Hydrant System

: Yes

: Yes

: Yes

 

: Yes

: Yes

Plumbing & Water Recticulation Systems

Water Tank for Toilet only

Incoming Domestic Piping & Discharged Piping

: Yes

: Yes

 
注意:以上所有项目均应根据主管部门的要求或建筑师或工程师的建议进行更改,修改和替代。
平面图
侧面图
标准建筑规格(一切以英文版为标准)
平面图

底楼

1楼

侧面图

正面

背面

左侧

右侧

标准建筑规格(一切以英文版为标准)

工厂高度

9m

地板设计荷载

生产区域(底楼)
20KN /m²(非悬浮楼板)

办公区(夹层楼)

2.5KN/m²

屋顶设计荷载

生产区域屋顶

施加的恒载= 0.25kN/m²(R架,Pur条,金属屋面,隔热,照明配件,洒水管和石膏板天花板,带有T型铝框的荷载活载= 0.25kN /m²

屋顶系统

屋顶结构

根据BS 5950标准设计的结构钢

屋顶板

金属屋顶或等效的50毫米配重厚玻璃纤维绝缘

雨水落水管

裸露的150mm∅UPVC管(生产区域), 暗装150mm∅UPVC管(办公区)

排水沟

不锈钢水槽

墙

内墙(办公室和喷水器储罐区)

115毫米厚的普通石膏墙和涂有乳胶漆, 卫生间陶瓷墙砖(2.1m高)

外墙(办公区)

115毫米厚的普通石膏墙和涂有耐候性漆

外墙(生产区域)

砖墙和/或预制墙,涂有 全天候涂料

楼层

底楼

150毫米厚的G30混凝土,带有一层聚乙烯板和BRC A7

生产饰面

4kg /m²地板硬化剂饰面

办公室和大堂饰面

抛光砖

大堂楼梯

抛光砖

厕所地板饰面

亚光面瓷砖

门

外门

电动卷帘门和低碳钢门(生产区域), 钢化玻璃门(入口区域)

内门

防火门(根据地方当局要求)和木材平开门(办公区)

视窗

外窗

NA铝合金推拉窗(生产区域)

反光玻璃幕墙(办公区)

铝框上悬窗(办公区)

天花板

办公区

2ft x 4ft石膏针孔假天花板(办公区)

石膏板石膏天花板(大堂区)

生产区 

裸露的钢结构(无天花板)

基建工程

外路

150mm厚度的钢筋混凝土路标

停车位

150mm厚钢筋混凝土路停车场

篱笆
前标牌 :
10m长的普通砖墙,配以白灰泥水泥并涂上耐候性涂料

周长: 150mm高路缘,1.8 m高BSP篱笆

门 

9m宽滑门,无电机,电机电源

排水系统

暗管涵排水

下水道系统

陶瓷粘土管(VCP)连接到主排水管

垃圾桶

1个

警卫室 

1个

洒水箱和底座

1个

TNB变电站

遵守适当的权限要求

码头矫平机

以设计为准

标准机械和电气规范

MSB 1000A(设置600A)

1个

DB 150A

2个

DB 60A

2个

DB 30A

1个

照明点

138个

13A S/S/O

41个

15A空调电源点

3个

紧急灯

34个

登出

11个

电话点

3个

数据点

2个

30A隔离点

9个

消防系统

火警系统 

有

软管系统

有

自动洒水系统(普通危险)

有

手提式灭火器

有

消防栓系统

有

水暖和水网系统

仅马桶水箱

有

来水管和排污管

有

注意:以上所有项目均应根据主管部门的要求或建筑师或工程师的建议进行更改,修改和替代。


Info@amedevelopment.com.my (+60)7-5959 999

我们的企业

公司背景

愿景使命

公司奖项

我们的证书

我们的专业

项目

i-Park@Senai Airport City
i-Park @ Indahpura
i-Park @ SiLC
District 6 @ SiLC
SME City
The Jacaranda

AME HQ 地址

No.5, Jalan I-Park SAC 2,
Taman Perindustrian I-Park SAC,
81400 Senai, Johor, Malaysia

电子邮件

Enquiry@ipark.com.my

电话/服务热线

+607-5959 999

传真

+607-5959 668

集团公司

AME Elite Consortium Berhad
AME Construction
AME Engineering
Asiamost
Ipark Development
i-Stay

加入我们

职业

社交媒体

Facebook
LinkedIn

Twitter

Instagram

Youtube

法律

隐私政策

条款和条件

AME DEVELOPMENT SDN BHD 200801002418 (803702-H)
Copyright © 2025 AME Development Sdn. Bhd. All Rights Reserved.
Group of Companies under AME Elite Consortium Berhad.

Chat with us
Start a Conversation
Hi! Click one of our member below to chat on Whatsapp
The team typically replies in a few minutes.
Sales & Marketing
加载中
加载中