• Home
  • Company Overview
    • About Us
    • Vision & Mission
    • Awards Recognition
    • Our Certificates
    • Key Organization
  • Our Project
    • Our Projects
    • View All Project
  • Services
  • News & Media
    • Press Release
    • Gallery
    • Video
  • Career
  • Contact
    • Contact
    • Get An Enquiry
  • Home
  • Company Overview
    • About Us
    • Vision & Mission
    • Awards Recognition
    • Our Certificates
    • Key Organisation
  • Projects
    • Northern
      Northern TechValley@BKE
    • Central
      Ijok Selangor
    • Southern
      i-TechHub
    • I-Techvalley
    • i-Park @ Senai Airport City
    • i-Park @ Indahpura
    • i-Park @ SILC
    • District 6 @ SILC
    • SME City
    • The Jacaranda
    • View All
  • Services
  • News & Media
    • Press Release
    • Gallery
    • Video
  • Career
  • Contact
    • Get An Enquiry

TYPE B 1½ STOREY DETACHED FACTORY
(approx. 1 acre)

LAND AREA

Approx. 42,527.49 sq.ft. – 46,910.59 sq.ft

GROSS FLOOR AREA

Approx. 30,745 sq.ft – 31,202 sq.ft

FLOOR PLAN
ELEVATION PLAN
BUILDING SPECIFICATION
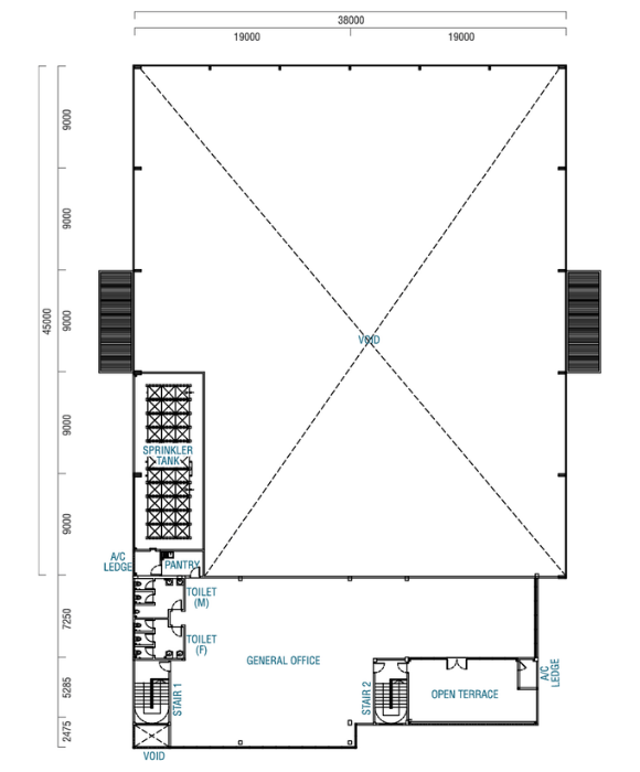
FLOOR PLAN

GROUND FLOOR

FIRST FLOOR

Note: All the above items are subject to variations, modifications and substitution as required by the Authorities or recommended by the Architect or Engineer.
ELEVATION PLAN

FRONT ELEVATION

REAR ELEVATION

LEFT ELEVATION

RIGHT ELEVATION

Note: All the above items are subject to variations, modifications and substitution as required by the Authorities or recommended by the Architect or Engineer.
BUILDING SPECIFICATION

Factory Height                         

: 9m

Floor Design Loads

Production area (Ground Floor)

Office Area (Mezzanine Floor)

: 20KN/m²(Non Suspended Floor Slab)

: 2.5KN/m²

Roof Design Loads

Production Area Roof

: Imposed dead load = 0.25kN/m² (Load of Rafter,
  Purlin, Metal Roofing Sheet, Insulation, Lighting
  Fitting, Sprinkler Pipe and Gypsum Board Ceiling with
  Aluminium Tee Frame) Live load = 0.25kN/m²

Roof System

Roof Structure

Roof Sheets

Rain Water Down Pipe

Gutter

: Structural Steel Designed to BS 5950 Standard

: Galvalume Metal Roof or equivalent c/w 50mm
  thick fiberglass insulation

: Exposed 150mm ∅ UPVC Pipe (Production Area)

  Concealed 150mm ∅ UPVC Pipe (Office Area)

: Stainless Steel Gutter

Walls

Internal Wall
(Office & Sprinkler Tank Area)

External Wall (Office Area)

External Wall (Production Area)

: 115mm thick common brick wall with plaster and
  painted with emulsion paint

: Ceramic wall tiles to toilets (2.1m High)

: 115mm thick common brick wall with plaster and
  painted with weather bond paint

: Brickwall and / or Precast Wall and painted with
  weather bond paint

Floors

Ground floor 

Production Finishes

Office & Lobby Finishes

Lobby Staircase Finishes

Toilet Floor Finishes

: 150mm thick G30 concrete with a layer of
  polythene sheet and BRC A7

: 4kg/m² floor harderner finishes

: Polished tiles

: Polished tiles

: Matt Surface Ceramic Tiles

Doors

External Doors

Internal Doors

: Motorized Roller Shutters and Mild Steel Doors
  (Production Area)

: Tempered glass door (Entrance Area)

: Fire-rated Door (Based on local authority
  requirement) & Timber Flush Door (Office Area)

Windows

External Windows

: NA Aluminium Casement Window (Production Area)

: Reflective Glass Curtain Wall (Office Area)

: Aluminium Framed Top Hung Windows (Office Area)

Ceiling

Office Area

Production Area 

: 2ft x 4ft Gypsum Pin Hole False Ceiling
  (Office Area)

: Gypsum Board Plaster Ceiling(Lobby Area)

: Exposed  Steel Structure (No Ceiling)

Infrastructure Works

External Road

Parking Bays

 Fencing

Gate

Drainage System

Sewerage System

Bin Center

Guardhouse

Sprinkler Tank & Plinth

TNB Sub-station

Dock Leveller

: 150mm Thick Reinforced Concrete Road
  c/w Road Marking

: 150mm Thick Reinforced Concrete Road c/w
  Parking Lot

: Front Signage : 10m length Common Brick Wall
  with c/w plaster cement and painted with
  weatherbond paint

: Perimeter : 150mm High Kerb with 1.8m High
  BSP Fencing

: 9m Wide Sliding Gate without Motor

: Power Point for Motor Provided

: Concealed Pipe Culvert Drain

: Vitrified clay pipe (VCP) connect to main
  sewerage line

: 1 no.

: 1 no.

: 1 no.

: Subject to appropriate authority requirement

: Subject to design

Standard Mechanical & Electrical Specification

MSB 1000A (setting 600A)

DB 150A

DB 60A

DB 30A

Lighting Point

13A S/S/O

15A Air-Cond Power Point

Emergency Light

Keluar Sign

Telephone Point

Data Point

30A Isolator Point

: 1 no.

: 1 no.

: 2 nos.

: 1 no.

: 102 nos.

: 38 nos.

: 4 nos.

: 18 nos.

: 10 nos.

: 3 nos.

: 2 nos.

: 5 nos.

Fire Protection Systems

Fire Alarm System

Hosereel System

Automatic Sprinkler System (Ordinary Hazard)

Portable Fire Extinguisher

Hydrant System

: Yes

: Yes

: Yes

: Yes

: Yes

Plumbing & Water Recticulation Systems

Water Tank for Toilet only

Incoming Domestic Piping & Discharged Piping

: Yes

: Yes

Note: All the above items are subject to variations, modifications and substitution as required by the Authorities or recommended by the Architect or Engineer.
FLOOR PLAN
ELEVATION PLAN
BUILDING SPECIFICATION
FLOOR PLAN

GROUND FLOOR

FIRST FLOOR

Note: All the above items are subject to variations, modifications and substitution as required by the Authorities or recommended by the Architect or Engineer.
ELEVATION PLAN

FRONT ELEVATION

REAR ELEVATION

LEFT ELEVATION

RIGHT ELEVATION

Note: All the above items are subject to variations, modifications and substitution as required by the Authorities or recommended by the Architect or Engineer.
BUILDING SPECIFICATION

Factory Height

9m 

Floor Design Loads

Production area (Ground Floor)
20KN/m², Non Suspended Floor Slab

Office Area (Mezzanine Floor)

2.5KN/m²

Roof Design Loads

Production Area Roof
Imposed dead load = 0.25kN/m² (Load of Rafter, Purlin, Metal Roofing Sheet, Insulation, Lighting Fitting, Sprinkler Pipe and Gypsum Board Ceiling with Aluminium Tee Frame) Live load = 0.25kN/m²

Roof System

Roof Structure

Structural Steel Designed to BS 5950 Standard

Roof Sheets

Galvalume Metal Roof or equivalent c/w 50mm thick fiberglass insulation

Rain Water Down Pipe

Exposed 150mm ∅ UPVC, Pipe(Production Area), Concealed 150mm ∅ UPVC, Pipe(Office Area)

Gutter

Stainless Steel Gutter

Walls

Internal Wall (Office & Sprinkler Tank Area)

115mm thick common brick wall with plaster and
painted with emulsion paint, Ceramic wall tiles to toilets (2.1m High)

External Wall (Office Area)

115mm thick common brick wall with plaster and painted with
weather bond paint

External Wall (Production Area)

Brickwall and / or Precast Wall and painted with
weather bond paint

Floors

Ground Floor

150mm Thick G30 concrete with a Layer of Polythene Sheet and BRC A7

Production Finishes

4kg/m² Floor Hardener Finishes

Office & Lobby Finishes

Polished Tiles

Lobby Staircase Finished

Polished tiles

Toilet Floor Finishes

Matt Surface Ceramic Tiles

Doors

External Doors

Motorized Roller Shutters and Mild Steel Doors (Production Area), Tempered Glass Door (Entrance Area)

Internal Doors

Fire-rated Door (Based on local authority requirement)
& Timber Flush Door (Office Area)

Windows

External Windows

NA Aluminium Sliding Windows (Production Area)

Reflective Glass Curtain Wall (Office Area)

Aluminium Framed Top Hung Windows (Office Area)

Ceiling

Office Area

2ft x 4ft Gypsum Pin Hole False Ceiling (Office Area), Gypsum Board Plaster Ceiling (Lobby Area)

Production Area

Exposed Steel Structure (No Ceiling)

Infrastructure Works

External Road

150mm Thick Reinforced Concrete Road c/w Road Marking

Parking Bays

150mm Thick Reinforced Concrete Road c/w Parking Lot

Fencing
Front Signage :
10m length Common Brick Wall with c/w
plaster cement and painted with weatherbond paint

Perimeter: 150mm High Kerb with 1.8m High BSP Fencing

Gate

9m Wide Sliding Gate Without Motor, Power Point for Motor Provided

Drainage System

Concealed Pipe Culvert Drain

Sewerage System

Vitrified Clay Pipe (VCP) Connect to Main Sewerage Line

Bin Center

1 no.

Guardhouse

1 no.

Sprinkler Tank & Plinth

1 no.

TNB Sub-station

Subject to appropriate authority requirement

Dock Leveller

Subject to design

Standard Mechanical & Electrical Specification

MSB 1000A (setting 600A)

1 no.

DB 150A

1 no.

DB 60A

2 nos.

DB 30A

1 nos.

Lighting Point

102 nos.

13A S/S/O

38 nos.

15A Air-Cond Power Point

4 nos.

Emergency Light

18 nos.

Keluar’ Sign

10 nos.

Telephone Point

5 nos.

Data Point

2 nos.

30A Isolator Point

3 nos.

Fire Protection Systems

Fire Alarm System

Yes

Hosereel System

Yes

Automatic Sprinkler System (Ordinary Hazard)

Yes

Portable Fire Extinguisher

Yes

Hydrant System

Yes

Plumbing & Water Recticulation Systems

Water Tank for Toilet only

Yes

Incoming Domestic Piping & Discharged Piping

Yes

Note: All the above items are subject to variations, modifications and substitution as required by the Authorities or recommended by the Architect or Engineer.

COPORATE

About Us

Vision & Mission

Awards Accreditation

Our Certificates

Key Organisation

PROJECT

Northern TechValley @ BKE

Ijok Selangor

i-TechHub

I-TechValley

i-Park @ Senai Airport City

i-Park @ Indahpura

i-Park @ SILC

District 6 @ SILC

SME City

The Jacaranda

AME HQ ADDRESS

No.2, Jalan I-Park SAC 1/1,
Taman Perindustrian I-Park SAC,
81400 Senai, Johor, Malaysia

EMAIL

enquiry@amedev.com.my

PHONE / HELPLINE

+607-5959 999

FAX

+607-5959 668
GROUP OF COMPANIES

AME Elite Consortium Berhad

AME Construction

AME Engineering

Asiamost

Ipark Development

i-Stay

AME REIT
Quantum Renewable Energy
JOIN US

Career

SOCIAL MEDIA
LinkedIn

Facebook

Youtube

AME DEVELOPMENT SDN BHD 200801002418 (803702-H)

TERMS & CONDITIONS (BM)

TERMS & CONDTIONS (ENG)

TERMS & CONDITIONS (BM)

TERMS & CONDTIONS (ENG)

AME DEVELOPMENT SDN BHD 200801002418 (803702-H)
Copyright © 2025 AME Development Sdn. Bhd. All Rights Reserved.
Group of Companies under AME Elite Consortium Berhad.

Chat with us
Start a Conversation
Hi! Click one of our member below to chat on Whatsapp
The team typically replies in a few minutes.
Sales & Marketing
Loading...
Loading...