• 首页
  • 公司简介
    • 关于我们
    • 愿景和使命
    • 荣誉奖项
    • 我们的认证
    • 集团公司
  • 我们的项目
    • 项目展示
    • 展示所有项目
  • 专业服务
  • 新闻与媒体
    • 综合报导
    • 展示间
    • 视频
  • 职业
  • 联络
    • 联系我们
    • 追加咨询
  • 主页
  • 公司简介
    • 公司背景
    • 愿景和使命
    • 公司奖项
    • 我们的认证
    • 集团公司
  • 项目展示
    • I-PARK@SENAI AIRPORT CITY
    • I-PARK @ INDAHPURA
    • I-PARK @ SiLC
    • DISTRICT 6 @ SiLC
    • SME CITY
    • THE JACARANDA
    • 展示全部
  • 专业服务
  • 新闻媒体
    • 综合报导
    • 展示间
    • 视频
  • 加入我们
  • 联系我们
    • 追加咨询

A型
一层半,半独立式厂房

土地面积:

约18,674.46平方英尺– 21,440.81平方英尺

建筑面积:

约12,073平方英尺– 12,391平方英尺

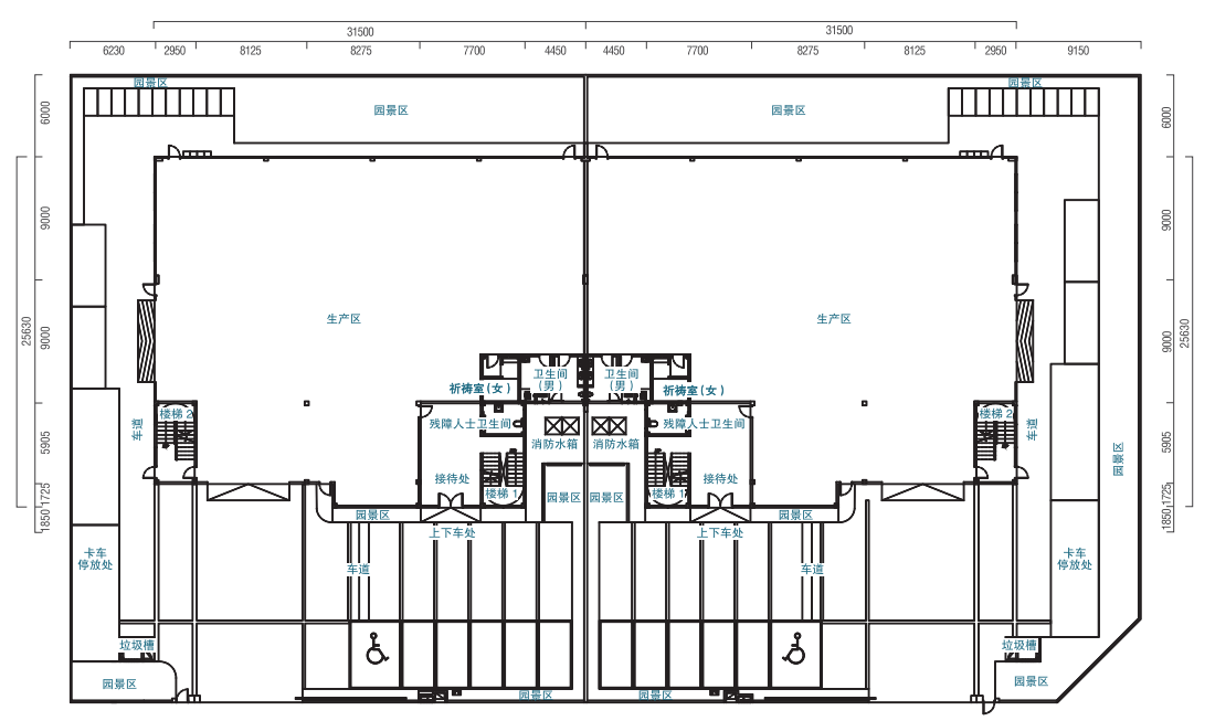
平面图
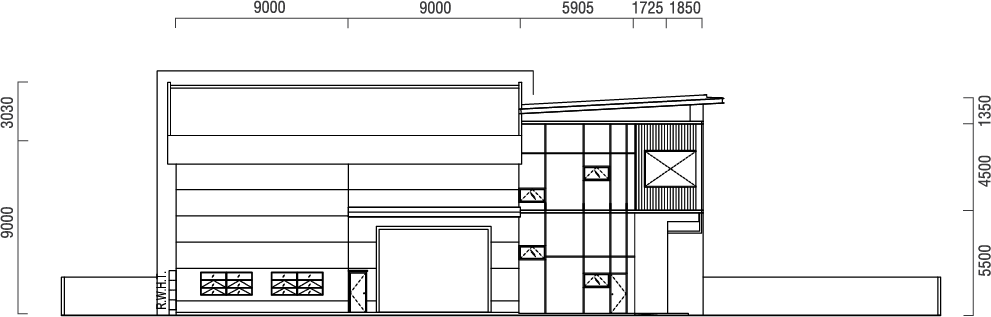
侧面图
标准建筑规格(一切以英文版标准)
平面图

底楼

1楼

侧面图

正面

侧面

背面

标准建筑规格(一切以英文版标准)

Factory Height

: 9m

 

Floor Design Loads

 

Production area (Ground Floor)

Office Area (Mezzanine Floor)

: 20KN/m²(Non Suspended Floor Slab)

: 2.5KN/m²

Roof Design Loads

 

Production Area Roof

: Imposed dead load = 0.25kN/m² (Load of Rafter,
  Purlin, Metal Roofing Sheet, Insulation, Lighting
  Fitting and Gypsum Board Ceiling with
  Aluminium Tee Frame) Live load = 0.25kN/m²

Roof System
 

Roof Structure

Roof Sheets

 

Rain Water Down Pipe

 

 

Gutter

 

: Structural Steel Designed to BS 5950 Standard

: Galvalume Metal Roof or equivalent c/w 50mm
  thick fiberglass insulation

: Exposed 150mm ∅ UPVC Pipe (Production Area)

  Concealed 150mm ∅ UPVC Pipe (Office Area)

: Stainless Steel Gutter

 

Walls

 

Internal Wall
(Office & Hose Reel Tank Area)

External Wall (Office Area)

External Wall (Production Area)

 

: 115mm thick common brick wall with plaster and
  painted with emulsion paint

: Ceramic wall tiles to toilets (2.1m High)

: 115mm thick common brick wall with plaster and
  painted with weather bond paint

: Brickwall and / or Precast Wall and painted with
  weather bond paint

Floors

 

Ground floor slab

 

Production Finishes

 

Office & Lobby Finishes

 

Lobby Staircase Finishes

 

Toilet Floor Finishes

 

:150mm thick G30 concrete with a layer of
  polythene sheet and BRC A7

: 4kg/m² floor harderner finishes

 

: Polished tiles

 

: Polished tiles

 

:Matt Surface Ceramic Tiles

Doors

 

External Doors

 

Internal Doors

 

:Motorized Roller Shutters and Mild Steel Doors
  (Production Area)

: Tempered glass door (Entrance Area)

: Fire-rated Door (Based on local authority
  requirement) & Timber Flush Door (Office Area)

Windows

 

External Windows

 

 

: NA Aluminium Casement Window (Production Area)

: Reflective Glass Curtain Wall (Office Area)

 

: Aluminium Framed Top Hung Windows (Office Area)

 

Ceiling

 

Office Area

 

Production Area 

 

: 2ft x 4ft Gypsum Pin Hole False Ceiling
  (Office Area)

: Gypsum Board Plaster Ceiling(Lobby Area)

: Exposed  Steel Structure (No Ceiling)

Infrastructure Works

 

External Road

 

Parking Bays

 

 Fencing

 

 

Gate

 

Drainage System

Sewerage System

 

Bin Center

Hose Reel Tank & Plinth

 

: 150mm Thick Reinforced Concrete Road
c/w Road Marking

: 150mm Thick Reinforced Concrete Road c/w
  Parking Lot

: Front Signage : 7.5m length Common Brick Wall
  with c/w plaster cement and painted with
  weatherbond paint

: Perimeter : 150mm High Kerb with 1.8m High
  BSP Fencing

: 7.5m Wide Sliding Gate without Motor

: Power Point for Motor Provided

 

: Concealed Pipe Culvert Drain

: Vitrified clay pipe (VCP) connect to main
  sewerage line

: 1 no.

: 1 no.

 

Standard Mechanical & Electrical Specification

 

MSB 400A (setting 200A)

DB 150A

DB 60A

Lighting Point

13A S/S/O

15A Air-Cond Power Point

Emergency Light

Keluar Sign

Telephone Point

 

Data Point

30A Isolator Point

 

: 1 no.

: 1 no.

: 2 nos.

: 58 nos.

: 29 nos.

: 3 nos.

: 12 nos.

: 8 nos.

: 2 nos.

: 2 nos.

: 3 nos.

Fire Protection Systems

Fire Alarm System

Hosereel System

Portable Fire Extinguisher

: Yes

: Yes

: Yes

 

Plumbing & Water Recticulation Systems

 

Water Tank for Toilet only

 

Incoming Domestic Piping & Discharged Piping

: Yes

 

: Yes

 
注意:以上所有项目均应根据主管部门的要求或建筑师或工程师的建议进行更改,修改和替代。
平面图
侧面图
标准建筑规格(一切以英文版为标准)
平面图

底楼

1楼

侧面图

正面

侧面

背面

标准建筑规格(一切以英文版为标准)

工厂高度

9m

地板设计荷载

生产区域(底楼)
20KN /m²(非悬浮楼板)

办公区(夹层楼)

2.5KN/m²

屋顶设计荷载

生产区域屋顶

施加的恒载= 0.25kN/m²(R架,Pur条,金属屋面,隔热,照明配件,洒水管和石膏板天花板,带有T型铝框的荷载活载= 0.25kN /m²

屋顶系统

屋顶结构

根据BS 5950标准设计的结构钢

屋顶板

金属屋顶或等效的50毫米厚玻璃纤维绝缘材料

排水沟

不锈钢水槽

墙

内墙 (办公室和喷水器储罐区)

115毫米厚的普通石膏墙和涂有乳胶漆, 卫生间陶瓷墙砖(2.1m高)

外墙(办公区)

115毫米厚的普通石膏墙和涂有耐候性漆

外墙(生产区域)

砖墙和/或预制墙,涂有 全天候涂料

楼层

底楼

50毫米厚的G30混凝土,一层聚乙烯片材和BRC A7

生产饰面

4kg /m²地板硬化剂饰面

办公室和大堂饰面

抛光砖

大堂楼梯

抛光砖

厕所地板饰面

亚光面瓷砖

门

外门

电动卷帘门和低碳钢门(生产区域), 钢化玻璃门(入口区域)

内门 

防火门(根据当地法规要求)和木材平开门(办公区)

视窗

外窗 

NA铝制推拉窗(生产区域)

反光玻璃幕墙(办公区)

铝框上悬窗(办公区)

天花板

办公区

2ft x 4ft石膏针孔假天花板(办公区),石膏板石膏天花板(大堂区)

生产区 

外露结构(无天花板)

基建工程

外路

150mm厚钢筋混凝土路道路标记

停车位

150mm厚钢筋混凝土路停车场

篱笆
前标牌 :
7.5m长的普通砖墙,配以白灰泥水泥并涂有耐候性涂料

周长: 150mm高路缘,1.8m高BSP围栏

门 

7.5m宽滑门,无电机,电机电源

排水系统

暗管涵排水

下水道系统

陶瓷粘土管(VCP)连接到主排水管

垃圾桶

1个

软管卷盘储罐和底座

1个

标准的机械和电气规范

MSB 400A(设置200A)

1个

DB 150A

1个

DB 60A

2个

照明点

58个

13A S/S/O

29个

15A空调电源点

3个

紧急灯

12个

登出

8个

电话点

2个

数据点

2个

30A 隔离点

3个

消防系统

火警系统

有

软管系统

有

手提式灭火器

有

水暖和水处理系统

仅限马桶水箱

有

来水管及排水管

有

注意:以上所有项目均应根据主管部门的要求或建筑师或工程师的建议进行更改,修改和替代。


Info@amedevelopment.com.my (+60)7-5959 999

我们的企业

公司背景

愿景使命

公司奖项

我们的证书

我们的专业

项目

i-Park@Senai Airport City
i-Park @ Indahpura
i-Park @ SiLC
District 6 @ SiLC
SME City
The Jacaranda

AME HQ 地址

No.5, Jalan I-Park SAC 2,
Taman Perindustrian I-Park SAC,
81400 Senai, Johor, Malaysia

电子邮件

Enquiry@ipark.com.my

电话/服务热线

+607-5959 999

传真

+607-5959 668

集团公司

AME Elite Consortium Berhad
AME Construction
AME Engineering
Asiamost
Ipark Development
i-Stay

加入我们

职业

社交媒体

Facebook
LinkedIn

Twitter

Instagram

Youtube

法律

隐私政策

条款和条件

AME DEVELOPMENT SDN BHD 200801002418 (803702-H)
Copyright © 2025 AME Development Sdn. Bhd. All Rights Reserved.
Group of Companies under AME Elite Consortium Berhad.

Chat with us
Start a Conversation
Hi! Click one of our member below to chat on Whatsapp
The team typically replies in a few minutes.
Sales & Marketing
加载中
加载中